Link copiato!

Porzione di bifamiliare in vendita a San Matteo della Decima

255000.00
 €
Riferimento: 1585-25
2

Camere

2

Bagni

107

Metri quadri

Giardino

Descrizione

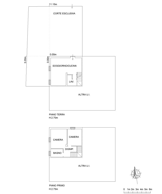
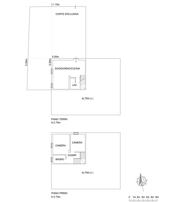
La casa è composta al piano terra da un ingresso su ampio soggiorno con cucina a vista e un bagno / lavanderia. Al primo piano troviamo il disimpegno notte, una spaziosa camera matrimoniale, una camera doppia e un secondo bagno. Completa la proprietà una mansarda al secondo piano, attualmente adibita a terza cameretta, perfetta come stanza aggiuntiva per ospiti o studio. L’immobile è dotato di impianto di riscaldamento autonomo con termosifoni, stufa a pellet e climatizzazione con pompa di calore, garantendo il massimo comfort in ogni stagione. Esternamente è stato completamente riqualificato nel 2010, con l’applicazione del cappotto termico, mentre gli interni sono stati rinnovati nel 2014.

Contesto

L’abitazione si trova in una zona residenziale circondata dal verde ma al tempo stesso comoda ai principali servizi. A pochi minuti si trovano scuole, supermercati, bar, fermate dell’autobus e tutti i principali collegamenti con il centro di San Giovanni in Persiceto. La posizione rappresenta un perfetto equilibrio tra tranquillità e praticità. Se cerchi una casa indipendente già pronta da vivere, con spazi luminosi e ben distribuiti, in un contesto riservato, questa potrebbe essere la soluzione giusta per te! Contattaci per maggiori informazione e fissare una visita.

San Giovanni in Persiceto

Caricamento numero...
Riferimento: 1585-25
* I campi contrassegnati con l’asterisco sono obbligatori