La consegna è prevista entro 18 mesi dalla firma del preliminare di vendita.
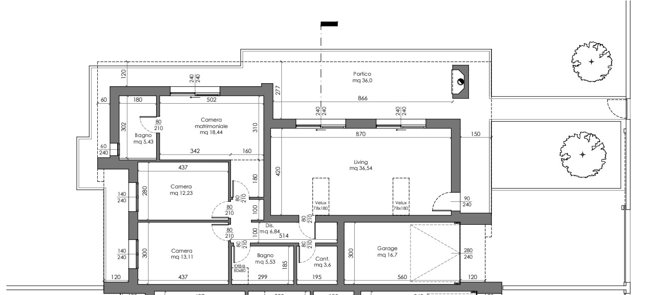
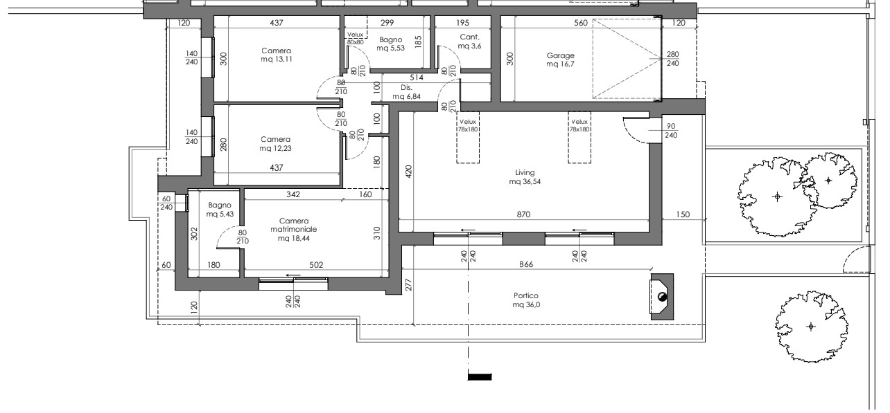
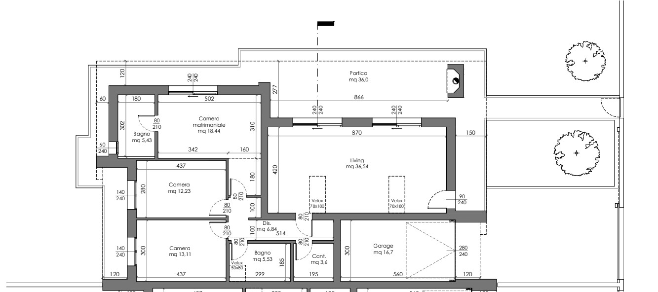
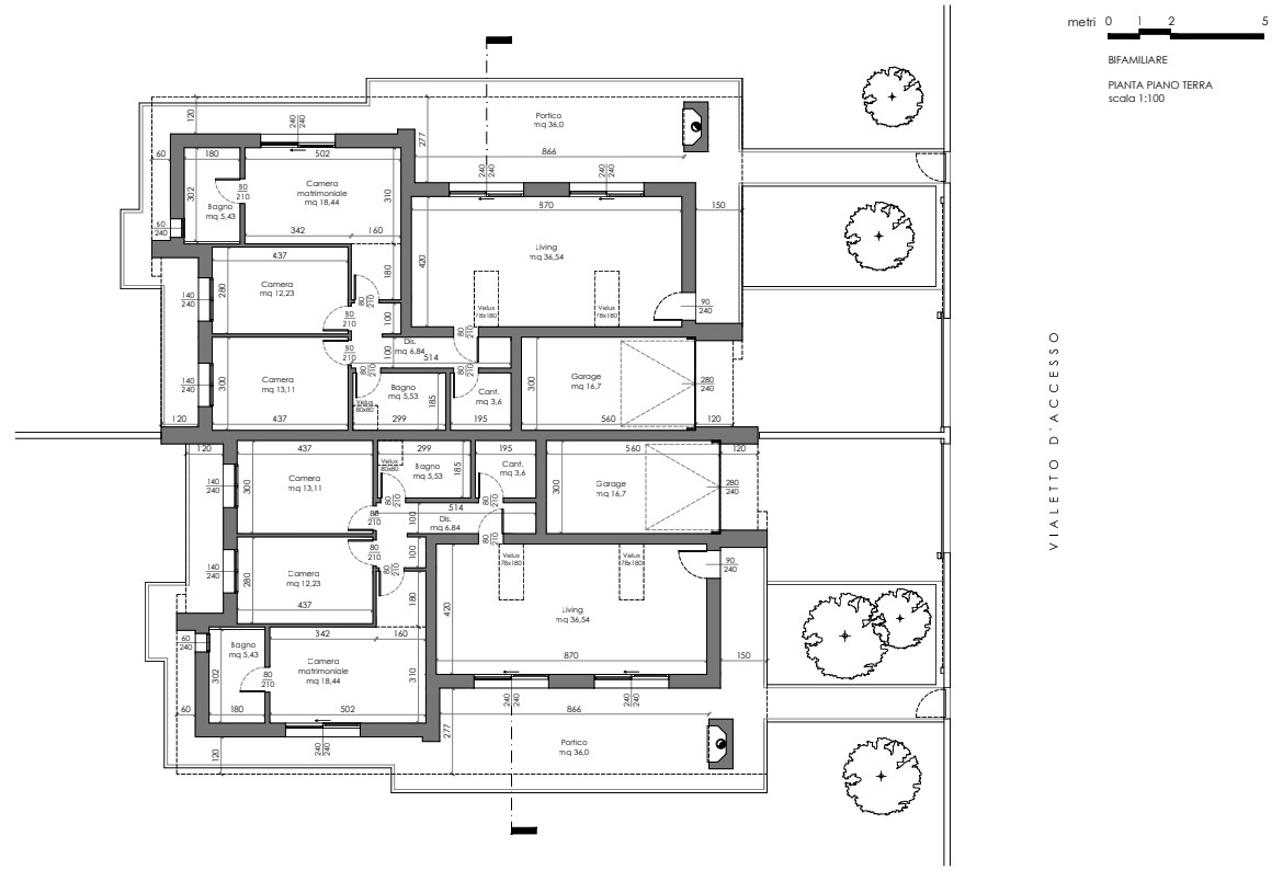
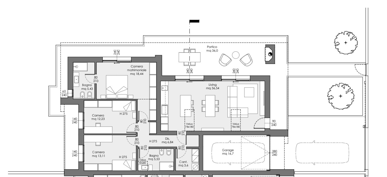
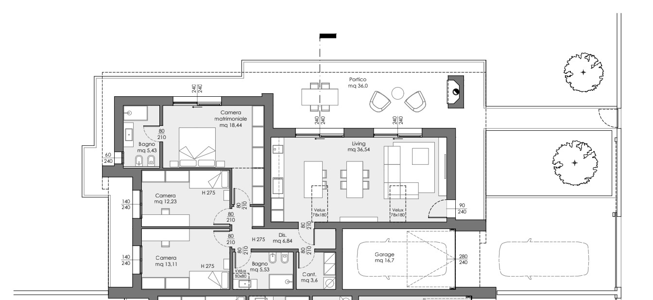
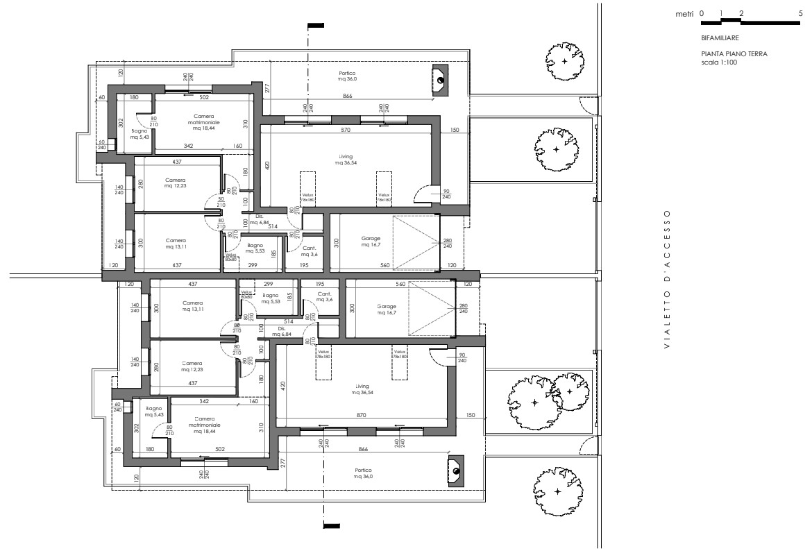
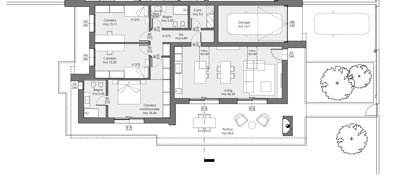
La villetta di 183 mq complessivi, è libera su 3 lati, si sviluppa interamente al piano terra e sorge su terreno della Partecipanza.
L’ingresso si apre su un luminoso soggiorno di circa 37 mq con cucina a vista, mentre la zona notte comprende 2 camere doppie di circa 13 mq ciascuna, un bagno finestrato con velux e 1 camera matrimoniale di circa 18 mq dotata di bagno privato con doccia. A completare la disposizione interna, una cantina con angolo lavanderia e un garage singolo di 17 mq, con davanti uno spazio per un ulteriore posto auto esterno all’interno della proprietà.
Alcune caratteristiche e dotazioni previste:
– Pompa di calore splittata reversibile aria/acqua per riscaldamento, raffrescamento e produzione di acqua calda;
– Impianto fotovoltaico con pannelli da 485 W sul tetto;
– Ventilazione Meccanica Controllata;
– Riscaldamento a pavimento con termostati indipendenti per ogni ambiente;
– Climatizzazione con split a pompa di calore;
– Punto di ricarica per auto elettrica in autorimessa con presa da 16A;
– Tapparelle motorizzate con comando singolo e centrale;
– Infissi in PVC/triplo vetro antisfondamento;
– Porta d’ingresso blindata.
Il nuovo complesso sorgerà in Via Rita Levi Montalcini, una zona tranquilla e in forte sviluppo, caratterizzata da contesti residenziali moderni e ben curati. L’area è comoda ai principali servizi del comune: scuole, supermercati, impianti sportivi e aree verdi sono tutti raggiungibili in pochi minuti. Ottima anche la posizione per chi necessita di spostarsi quotidianamente: la stazione ferroviaria dista circa 5 minuti in auto, mentre il centro storico è raggiungibile in bicicletta o a piedi grazie alle piste ciclabili di nuova realizzazione.
Contattaci subito per fissare un appuntamento in ufficio e scoprire in anteprima tutte le caratteristiche, i capitolati e le soluzioni disponibili in questo nuovo e prestigioso intervento edilizio!