Link copiato!

Villetta monofamiliare di nuova costruzione con giardino in vendita a San Giovanni in Persiceto

580000.00
 €
Riferimento: 2648-25e
3

Camere

2

Bagni

214

Metri quadri

Giardino

Garage

A4

Classe

Descrizione

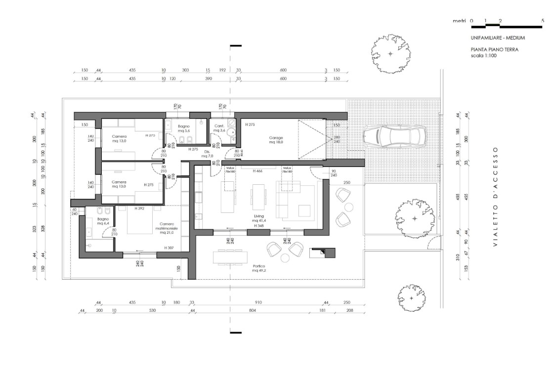
La consegna è prevista entro 18 mesi dalla firma del preliminare di vendita. La villetta di 214 mq complessivi, è libera su 4 lati, si sviluppa interamente al piano terra e sorge su terreno della Partecipanza. L’ingresso si apre su un luminoso soggiorno di circa 41 mq con cucina a vista, mentre la zona notte comprende 2 camere doppie di 13 mq ciascuna, un bagno finestrato con doccia e 1 camera matrimoniale di 21 mq dotata di ampio bagno privato. A completare la disposizione interna, una cantina con angolo lavanderia e un garage singolo di 18 mq direttamente collegato all’abitazione, con davanti lo spazio per un posto auto esterno all’interno del cancello. Alcune caratteristiche e dotazioni previste: – Pompa di calore splittata reversibile aria/acqua per riscaldamento, raffrescamento e produzione di acqua calda; – Impianto fotovoltaico con pannelli da 485 W sul tetto; – Ventilazione Meccanica Controllata; – Riscaldamento a pavimento con termostati indipendenti per ogni ambiente;

Contesto

– Climatizzazione con split a pompa di calore; – Punto di ricarica per auto elettrica in autorimessa con presa da 16A; – Tapparelle motorizzate con comando singolo e centrale; – Infissi in PVC/triplo vetro antisfondamento; – Porta d’ingresso blindata. Il nuovo complesso sorgerà in Via Rita Levi Montalcini, una zona tranquilla e in forte sviluppo, caratterizzata da contesti residenziali moderni e ben curati. L’area è comoda ai principali servizi del comune: scuole, supermercati, impianti sportivi e aree verdi sono tutti raggiungibili in pochi minuti. Ottima anche la posizione per chi necessita di spostarsi quotidianamente: la stazione ferroviaria dista circa 5 minuti in auto, mentre il centro storico è raggiungibile in bicicletta o a piedi grazie alle piste ciclabili di nuova realizzazione. Contattaci subito per fissare un appuntamento in ufficio e scoprire in anteprima tutte le caratteristiche, i capitolati e le soluzioni disponibili in questo nuovo e prestigioso intervento edilizio!

San Giovanni in Persiceto

Caricamento numero...
Riferimento: 2648-25e
* I campi contrassegnati con l’asterisco sono obbligatori