Link copiato!

Trilocale a reddito di nuova costruzione in vendita a San Giovanni in Persiceto

245000.00
 €
Riferimento: 2713-25a
2

Camere

1

Bagni

82

Metri quadri

Garage

A4

Classe

Descrizione

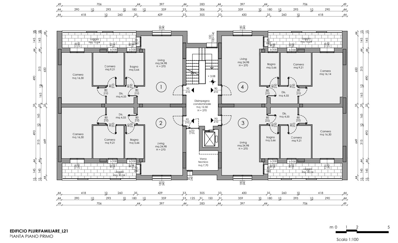
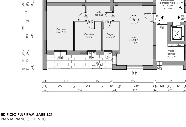
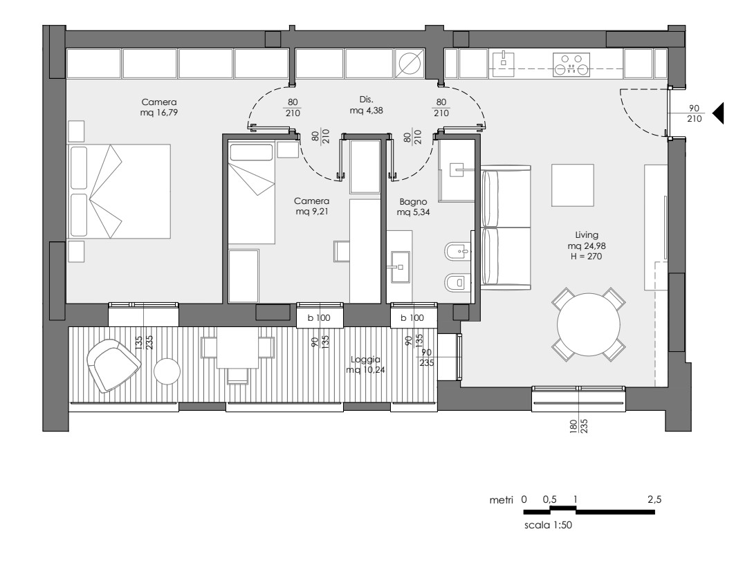
Tutte le unità saranno dotate di garage privato di 22mq al piano terra, un posto auto esterno condominiale riservato, ascensore e impianto fotovoltaico, garantendo così un comfort abitativo elevato e costi di gestione contenuti. La tipologia proposta a questo prezzo riguarda 5 trilocali in edilizia convenzionata “ERS”, di cui 4 situati al primo piano e 1 al secondo piano. Si tratta di appartamenti che, in base alla convenzione con il Comune, devono essere destinati alla locazione per un periodo minimo di 10 anni con canone concordato, offrendo così un’opportunità interessante per chi desidera acquistare un immobile come investimento sicuro e a lungo termine, con rendita stabile e in un contesto abitativo di nuova costruzione. Ogni appartamento è composto da ingresso sul soggiorno con angolo cottura, disimpegno, un bagno finestrato, una camera matrimoniale e una camera singola, entrambe con accesso diretto al balcone loggiato, ideale per godere di uno spazio esterno coperto e riservato.

Contesto

Gli appartamenti saranno dotati di riscaldamento a pavimento, porta d’ingresso blindata, infissi in PVC/doppio vetro, tapparelle elettriche in alluminio coibentato e zanzariere installate in tutti gli ambienti. Il nuovo edificio sorgerà in Via Castagnolo, un’area in forte crescita a San Giovanni in Persiceto, ben servita e caratterizzata da ampi spazi verdi e piste ciclopedonali che collegheranno direttamente la zona al centro storico e agli impianti sportivi comunali. Nelle immediate vicinanze si trovano scuole, supermercati, farmacie e mezzi pubblici che permettono di raggiungere comodamente la stazione ferroviaria in pochi minuti. L’ambiente residenziale risulta tranquillo e moderno, perfetto per chi cerca un contesto ben organizzato, sicuro e sostenibile. Se desideri investire in una soluzione moderna, ad alta efficienza energetica e con un’ottima prospettiva di rendimento, contattaci subito per fissare un appuntamento in ufficio e scoprirne tutti i vantaggi!

San Giovanni in Persiceto

Caricamento numero...
Riferimento: 2713-25a
* I campi contrassegnati con l’asterisco sono obbligatori