Tutte le unità saranno dotate di garage privato di 22 mq al piano terra, un posto auto esterno condominiale riservato, ascensore e impianto fotovoltaico, garantendo così un comfort abitativo elevato e costi di gestione contenuti.
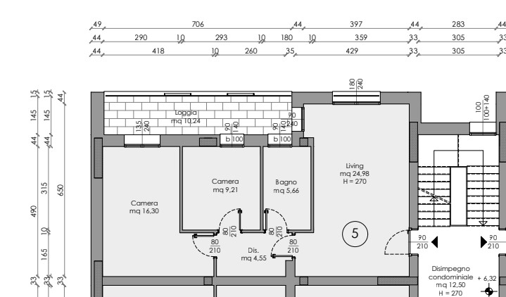
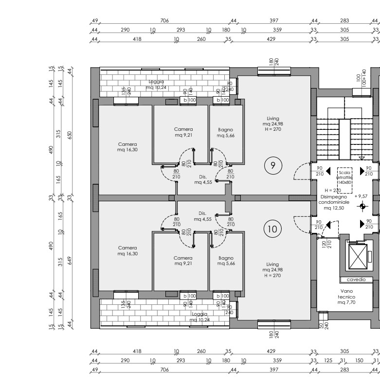
La tipologia proposta a questo prezzo riguarda 3 trilocali in edilizia libera, di cui 1 situato al secondo piano e 2 al terzo piano, cioè l’ultimo.
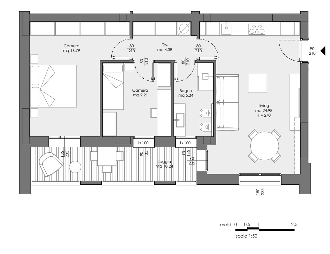
Ogni appartamento è composto da ingresso sul soggiorno con angolo cottura, disimpegno, un bagno finestrato, una camera matrimoniale e una camera singola, entrambe con accesso diretto al balcone loggiato, ideale per godere di uno spazio esterno coperto e riservato.
Gli appartamenti saranno dotati di riscaldamento a pavimento, porta d’ingresso blindata, infissi in PVC/doppio vetro, tapparelle elettriche in alluminio coibentato e zanzariere installate in tutti gli ambienti.
Il nuovo edificio sorgerà in Via Castagnolo, un’area in forte crescita a San Giovanni in Persiceto, ben servita e caratterizzata da ampi spazi verdi e piste ciclopedonali che collegheranno direttamente la zona al centro storico e agli impianti sportivi comunali.
Nelle immediate vicinanze si trovano scuole, supermercati, farmacie e mezzi pubblici che permettono di raggiungere comodamente la stazione ferroviaria in pochi minuti. L’ambiente residenziale risulta tranquillo e moderno, perfetto per chi cerca un contesto ben organizzato, sicuro e sostenibile.
Se desideri una soluzione moderna, ad alta efficienza energetica ed in una posizione strategica, contattaci subito per fissare un appuntamento in ufficio e scoprirne tutti i vantaggi di questa nuova proposta immobiliare a San Giovanni in Persiceto.