Link copiato!

Quadrilocale di nuova costruzione in vendita a San Giovanni in Persiceto

335000.00
 €
Riferimento: 2713-25d
3

Camere

2

Bagni

103

Metri quadri

Garage

A4

Classe

Descrizione

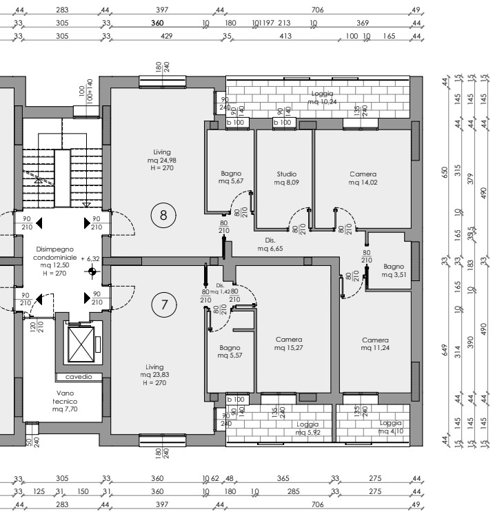
Tutte le unità saranno dotate di garage privato di 22 mq al piano terra, un posto auto esterno condominiale riservato, ascensore e impianto fotovoltaico, garantendo così un comfort abitativo elevato e costi di gestione contenuti. La tipologia proposta a questo prezzo riguarda 2 quadrilocali in edilizia libera, di cui 1 situato al secondo piano e 1 al terzo piano, cioè l’ultimo. Ogni appartamento è composto da ingresso sul soggiorno con angolo cottura, disimpegno, un bagno finestrato, una camera matrimoniale ed una camera singola o studio, entrambe con accesso diretto al primo ampio balcone loggiato, un secondo bagno/lavanderia ed una terza camera da letto doppia con accesso ad un altro balcone loggiato privato. Gli appartamenti saranno dotati di riscaldamento a pavimento, porta d’ingresso blindata, infissi in PVC/doppio vetro, tapparelle elettriche in alluminio coibentato e zanzariere installate in tutti gli ambienti.

Contesto

Il nuovo edificio sorgerà in Via Castagnolo, un’area in forte crescita a San Giovanni in Persiceto, ben servita e caratterizzata da ampi spazi verdi e piste ciclopedonali che collegheranno direttamente la zona al centro storico e agli impianti sportivi comunali. Nelle immediate vicinanze si trovano scuole, supermercati, farmacie e mezzi pubblici che permettono di raggiungere comodamente la stazione ferroviaria in pochi minuti. L’ambiente residenziale risulta tranquillo e moderno, perfetto per chi cerca un contesto ben organizzato, sicuro e sostenibile. Se desideri una soluzione moderna, ad alta efficienza energetica ed in una posizione strategica, contattaci subito per fissare un appuntamento in ufficio e scoprirne tutti i vantaggi di questa nuova proposta immobiliare a San Giovanni in Persiceto.

San Giovanni in Persiceto

Caricamento numero...
Riferimento: 2713-25d
* I campi contrassegnati con l’asterisco sono obbligatori