Link copiato!

Quadrilocale nuova costruzione in vendita a San Giovanni in Persiceto

318000.00
 €
Riferimento: 371-26a
3

Camere

2

Bagni

119

Metri quadri

Giardino

Garage

A4

Classe

Descrizione

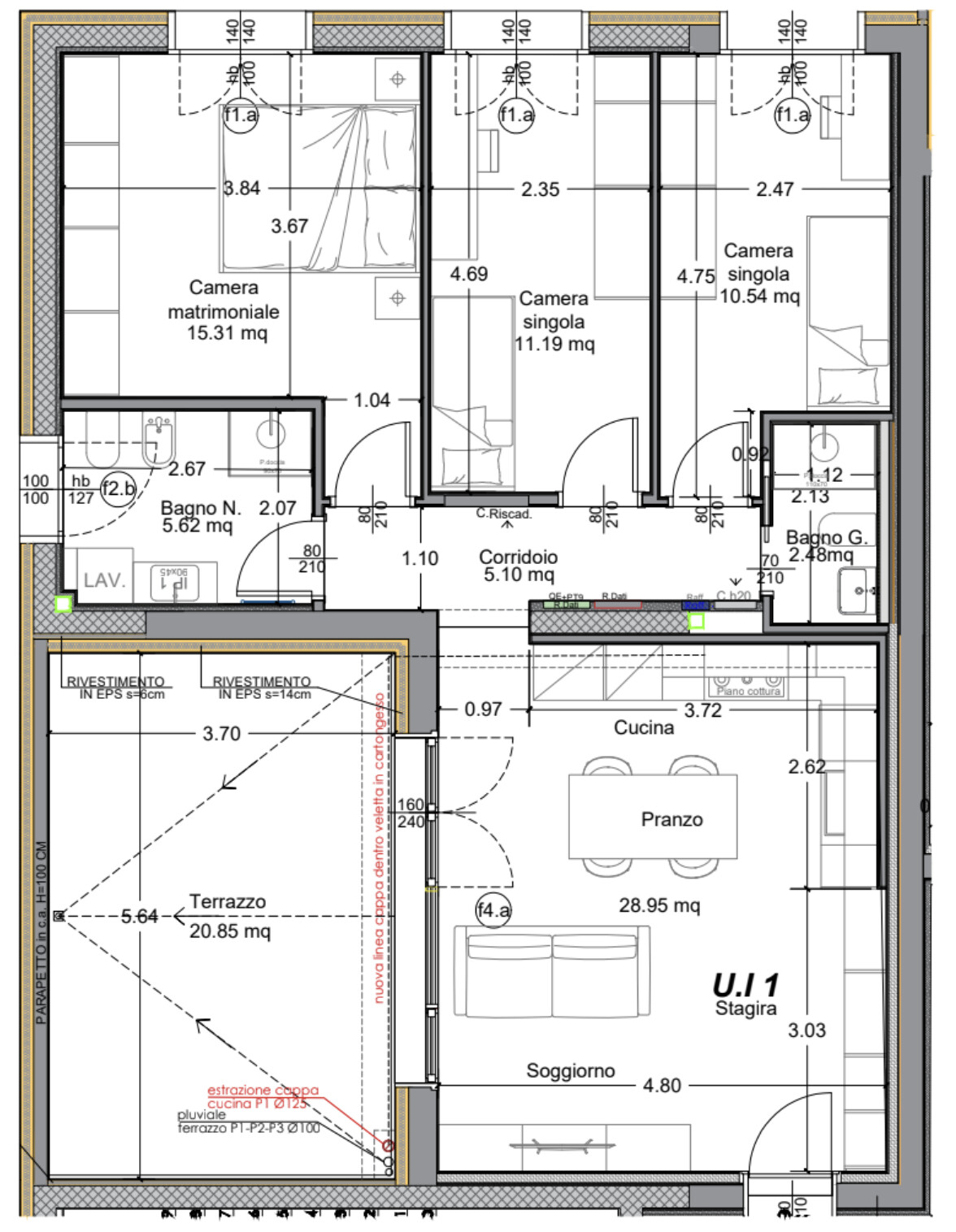
L’edificio è realizzato tramite un’iniziativa ERS: possono essere acquistati esclusivamente da nuclei con ISEE inferiore a € 40.000 e non potranno essere rivenduti prima di 30 anni dalla data di acquisto, secondo quanto previsto dalla convenzione. La tipologia STAGIRA proposta è la perfetta soluzione per vivere comodamente rispettando spazi e necessità di genitori e figli. Si tratta di un quadrilocale di 119 mq posto al 1° piano servito da ascensore, caratterizzato da ambienti ampi, ben distribuiti e luminosi grazie anche alla generosa terrazza di 21 mq, ideale per pranzi all’aperto e momenti di relax. L’ingresso si apre sul soggiorno di circa 29 mq con angolo cottura, valorizzato da un’ampia porta-finestra vetrata che garantisce sempre luce e accesso diretto al terrazzo. La zona notte, ben separata, comprende 1 camera matrimoniale, 2 camere singole e 2 bagni entrambi con doccia. Completano la proprietà un garage singolo al piano terra e un posto auto esterno.

Contesto

L’intervento sarà realizzato in classe energetica A4, con cappotto esterno, impianto fotovoltaico condominiale per la produzione di energia elettrica e impianto centralizzato con generatore a pompa di calore per riscaldamento e produzione di acqua calda. Ogni alloggio avrà riscaldamento a pavimento, termoarredi nei bagni, predisposizione per climatizzazione con ventilconvettori idronici e tapparelle motorizzate. L’edificio sorgerà in una zona residenziale tranquilla e ben collegata di San Giovanni, in Via Vittorina Sambri. Nelle immediate vicinanze si trovano scuole, supermercati, aree verdi e impianti sportivi, tutti facilmente raggiungibili a piedi o in bicicletta. Le fermate degli autobus sono a pochi minuti dall’abitazione e permettono di raggiungere rapidamente il centro e la stazione ferroviaria, che dista circa 5 minuti d’auto. Se desideri maggiori informazioni sui requisiti richiesti dall’edilizia convenzionata o sul capitolato, chiamaci per fissare un appuntamento in ufficio!

San Giovanni in Persiceto

Caricamento numero...
Riferimento: 371-26a
* I campi contrassegnati con l’asterisco sono obbligatori