Link copiato!

Quadrilocale nuova costruzione in vendita a San Giovanni in Persiceto

308000.00
 €
Riferimento: 371-26c
3

Camere

2

Bagni

116

Metri quadri

Giardino

Garage

A4

Classe

Descrizione

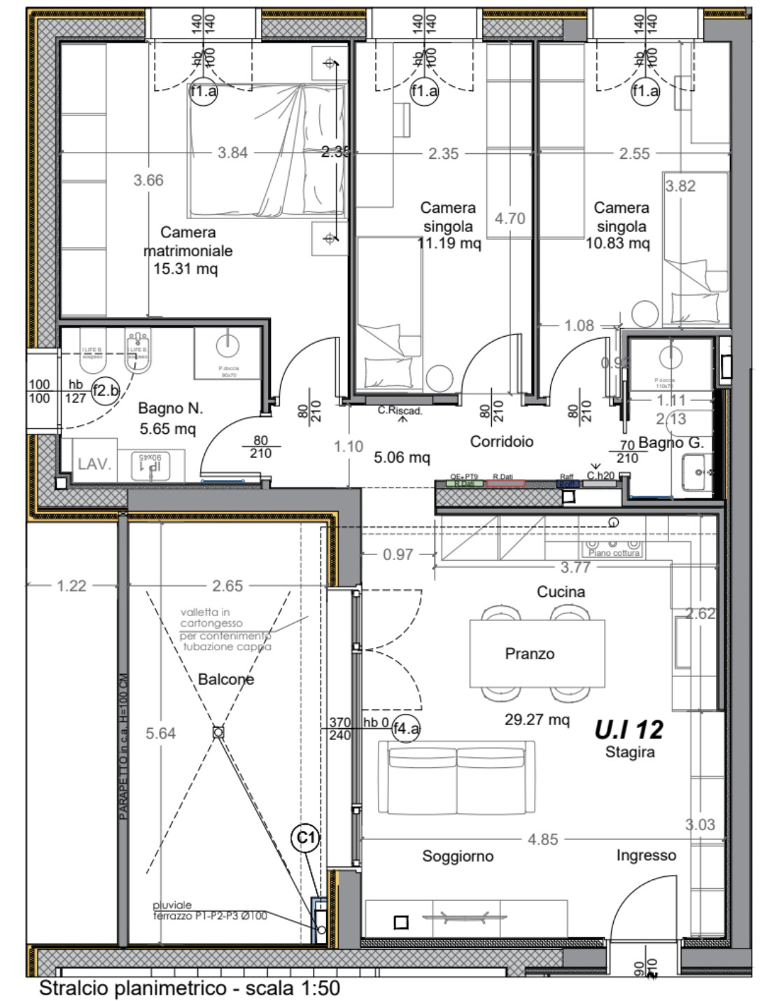
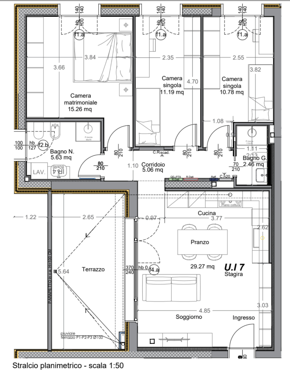
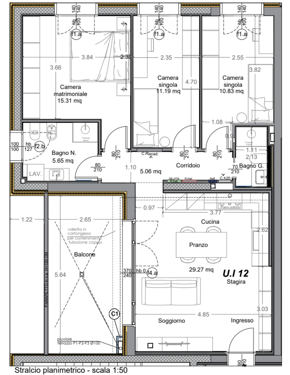
L’edificio è realizzato tramite un’iniziativa ERS: possono essere acquistati esclusivamente da nuclei con ISEE inferiore a € 40.000 e non potranno essere rivenduti prima di 30 anni dalla data di acquisto, secondo quanto previsto dalla convenzione. La tipologia STAGIRA proposta è la perfetta soluzione per vivere comodamente rispettando spazi e necessità di genitori e figli. Si tratta di appartamenti quadrilocali di 116 mq caratterizzati da ambienti ampi, ben distribuiti e luminosi, grazie anche alle generose terrazze di 15 mq, ideali per pranzi all’aperto e momenti di relax. Sono così composti: ingresso sul soggiorno di circa 29 mq con angolo cottura, valorizzato da un’ampia porta-finestra vetrata che garantisce sempre luce e accesso diretto al terrazzo, disimpegno notte, 1 camera matrimoniale, 2 camere singole e 2 bagni entrambi con doccia. Entrambi gli appartamenti hanno compresi nel prezzo un garage singolo al piano terra e un posto auto esterno.

Contesto

L’intervento sarà realizzato in classe energetica A4, con cappotto esterno, impianto fotovoltaico condominiale per la produzione di energia elettrica e impianto centralizzato con generatore a pompa di calore per riscaldamento e produzione di acqua calda. Ogni alloggio avrà riscaldamento a pavimento, termoarredi nei bagni, predisposizione per climatizzazione con ventilconvettori idronici e tapparelle motorizzate. L’edificio sorgerà in una zona residenziale tranquilla e ben collegata di San Giovanni, in Via Vittorina Sambri. Nelle immediate vicinanze si trovano scuole, supermercati, aree verdi e impianti sportivi, tutti facilmente raggiungibili a piedi o in bicicletta. Le fermate degli autobus sono a pochi minuti dall’abitazione e permettono di raggiungere rapidamente il centro e la stazione ferroviaria, che dista circa 5 minuti d’auto. Se desideri maggiori informazioni sui requisiti richiesti dall’edilizia convenzionata o sul capitolato, chiamaci per fissare un appuntamento in ufficio!

San Giovanni in Persiceto

Caricamento numero...
Riferimento: 371-26c
* I campi contrassegnati con l’asterisco sono obbligatori