Link copiato!

Quadrilocale nuova costruzione in vendita a San Giovanni in Persiceto

329000.00
 €
Riferimento: 371-26d
3

Camere

2

Bagni

124

Metri quadri

Giardino

Garage

A4

Classe

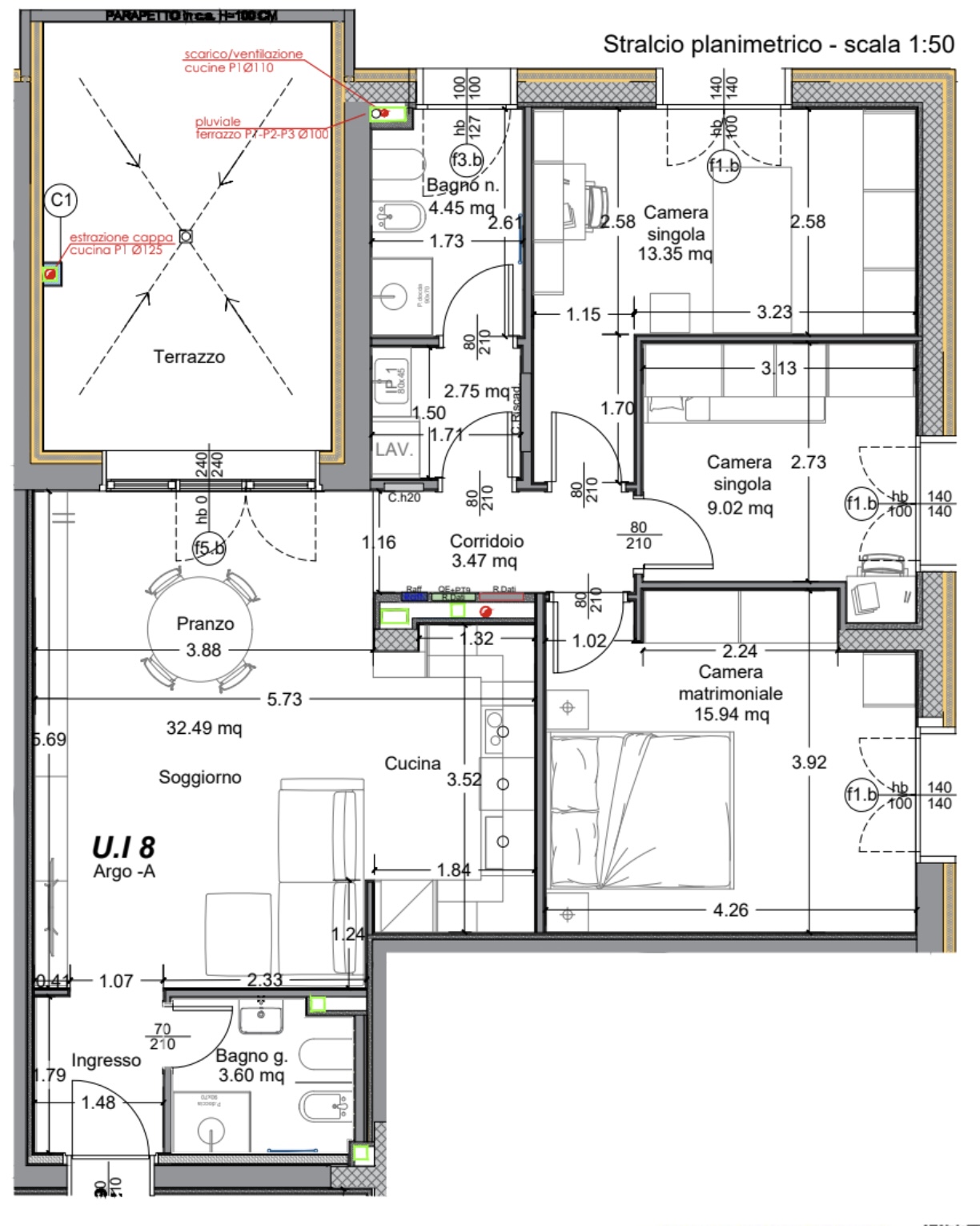
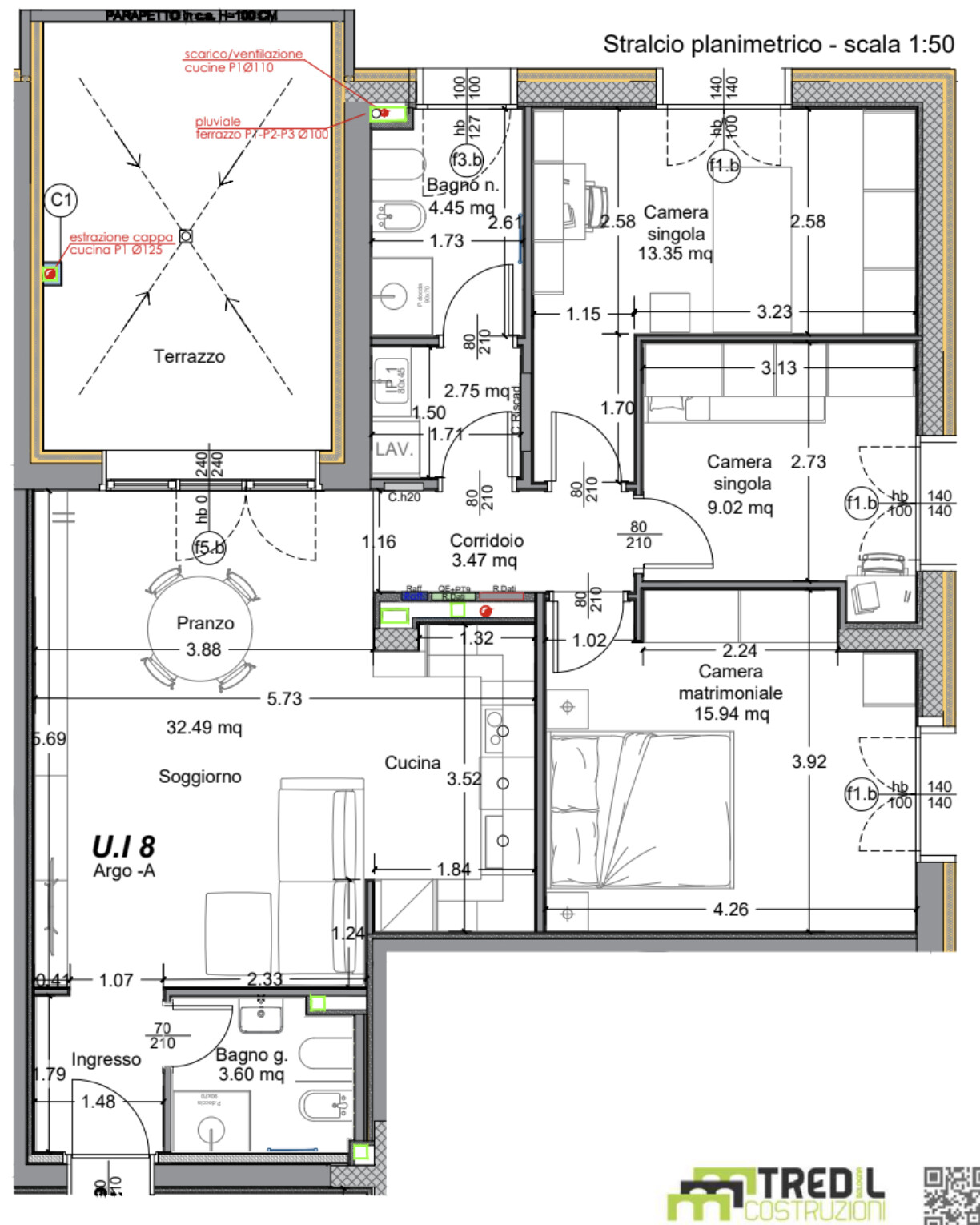
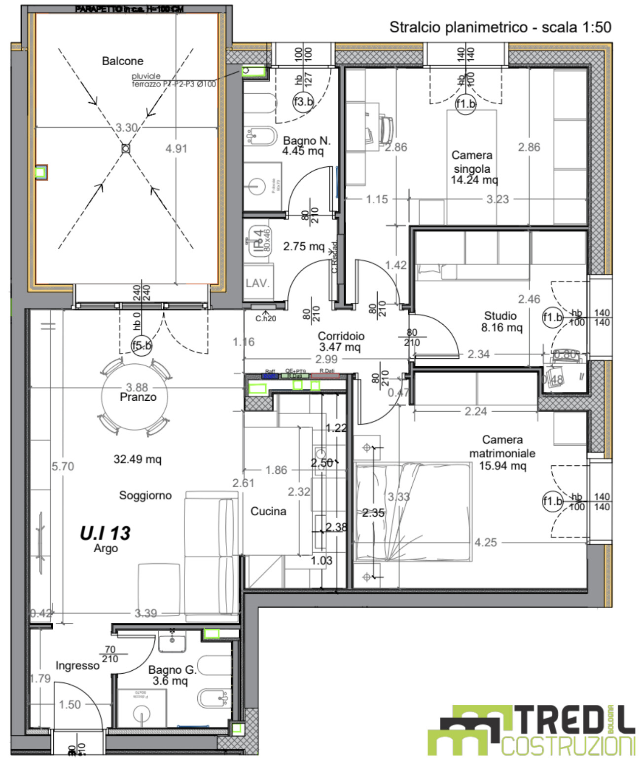
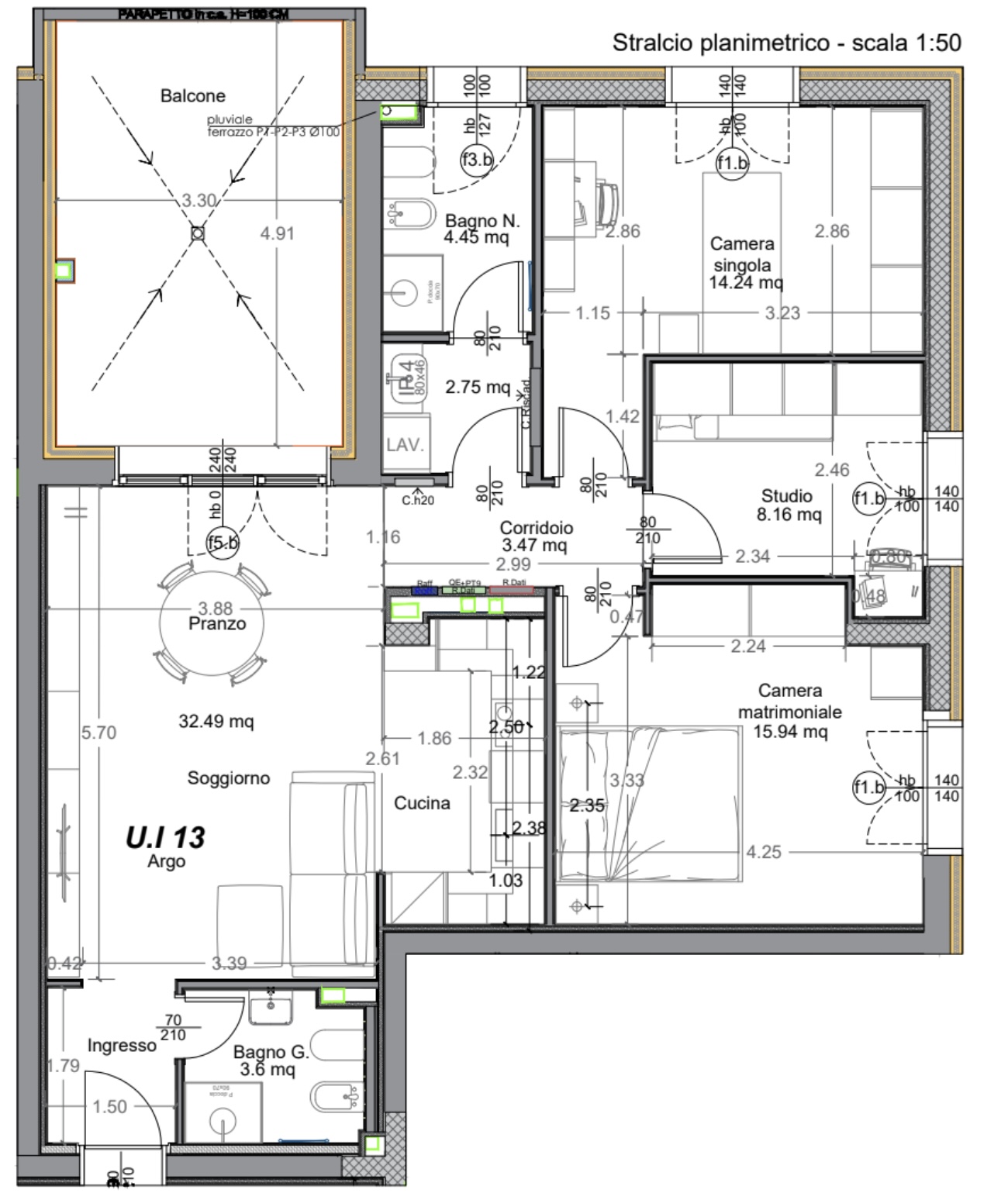
Descrizione

L’edificio è realizzato tramite un’iniziativa ERS: possono essere acquistati esclusivamente da nuclei con ISEE inferiore a € 40.000 e non potranno essere rivenduti prima di 30 anni dalla data di acquisto, secondo quanto previsto dalla convenzione. La tipologia ARGO proposta è ideale per le famiglie più numerose o per chi necessita di spazi per il lavoro da casa. Si tratta di appartamenti quadrilocali di 124 mq caratterizzati da ambienti ampi, ben distribuiti e luminosi, grazie anche alle generose terrazze di 16 mq, la cui conformazione permette di godere dell’esterno in totale privacy. Sono così composti: ingresso su disimpegno, un bagno con doccia, soggiorno di circa 33 mq con angolo cottura e ampia porta-finestra vetrata che dà l’accesso diretto al terrazzo, 1 camera matrimoniale, 2 camere singole e un secondo bagno finestrati con antibagno adibito a lavanderia. Entrambi gli appartamenti sono forniti da un garage singolo al piano terra e un posto auto esterno di proprietà.

Contesto

L’intervento sarà realizzato in classe energetica A4, con cappotto esterno, impianto fotovoltaico condominiale per la produzione di energia elettrica e impianto centralizzato con generatore a pompa di calore per riscaldamento e produzione di acqua calda. Ogni alloggio avrà riscaldamento a pavimento, termoarredi nei bagni, predisposizione per climatizzazione con ventilconvettori idronici e tapparelle motorizzate. L’edificio sorgerà in una zona residenziale tranquilla e ben collegata di San Giovanni, in Via Vittorina Sambri. Nelle immediate vicinanze si trovano scuole, supermercati, aree verdi e impianti sportivi, tutti facilmente raggiungibili a piedi o in bicicletta. Le fermate degli autobus sono a pochi minuti dall’abitazione e permettono di raggiungere rapidamente il centro e la stazione ferroviaria, che dista circa 5 minuti d’auto. Se desideri maggiori informazioni sui requisiti richiesti dall’edilizia convenzionata o sul capitolato, chiamaci per fissare un appuntamento in ufficio!

San Giovanni in Persiceto

Caricamento numero...
Riferimento: 371-26d
* I campi contrassegnati con l’asterisco sono obbligatori