Link copiato!

Villa o Villetta in vendita a Pisignano

150000.00
 €
Riferimento: 6-25b
6

Camere

2

Bagni

517

Metri quadri

Descrizione

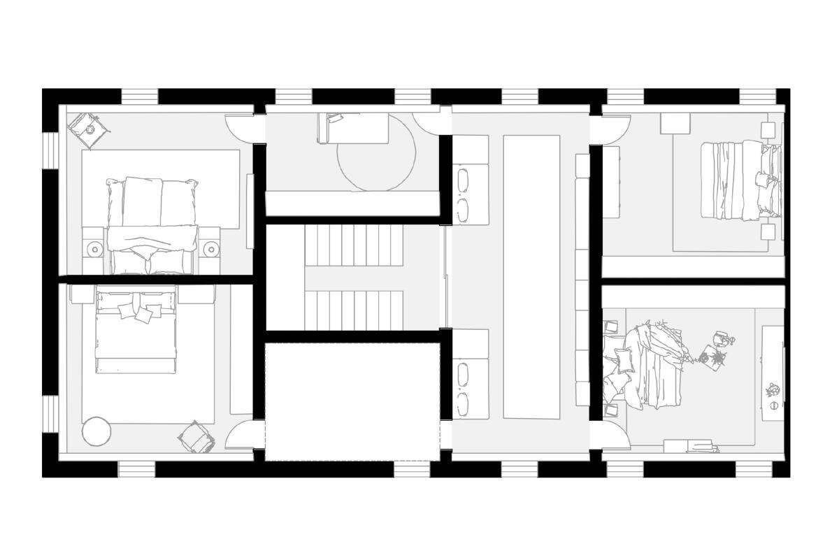
La proprietà si sviluppa su tre livelli: al piano terra troviamo ingresso che porta ad un luminoso soggiorno, una spaziosa cucina abitabile, due ulteriori vani versatili (ideali come studio o zona relax), un ampio disimpegno, due bagni. Al primo piano si sviluppa la zona notte, composta da sei camere matrimoniali di generose dimensioni, tutte caratterizzate da affacci suggestivi sul parco circostante e da una straordinaria luminosità naturale. Il secondo piano ospita un ampio sottotetto, perfetto per essere trasformato in due ulteriori ambienti abitabili secondo le esigenze del futuro proprietario. Completano la proprietà alcuni servizi in corpo staccato, utili come garage, deposito o potenziale dependance e una cantina.

Contesto

Cannuzzo è una tranquilla località immersa nella campagna romagnola, situata a pochi chilometri dal mare e dalle rinomate località balneari di Cervia e Milano Marittima, raggiungibili in meno di 15 minuti d’auto. La posizione è strategica anche per chi desidera vivere in un ambiente riservato e immerso nella natura, senza rinunciare alla vicinanza ai principali centri urbani come Cesena (circa 20 km) e Ravenna (25 km). Nelle immediate vicinanze si trovano i principali servizi di prima necessità: scuole, negozi, supermercati e farmacie sono facilmente accessibili, così come le principali vie di comunicazione stradale che collegano rapidamente con l’autostrada A14 e con le direttrici verso l’entroterra. La zona si presta perfettamente a chi desidera un contesto riservato, silenzioso, immerso nel verde e a breve distanza dal mare.

Cervia

Caricamento numero...
Riferimento: 6-25b
* I campi contrassegnati con l’asterisco sono obbligatori