Link copiato!

Ufficio locato in vendita a Funo

150000.00
 €
Riferimento: 924-25d
1

Bagni

110

Metri quadri

Descrizione

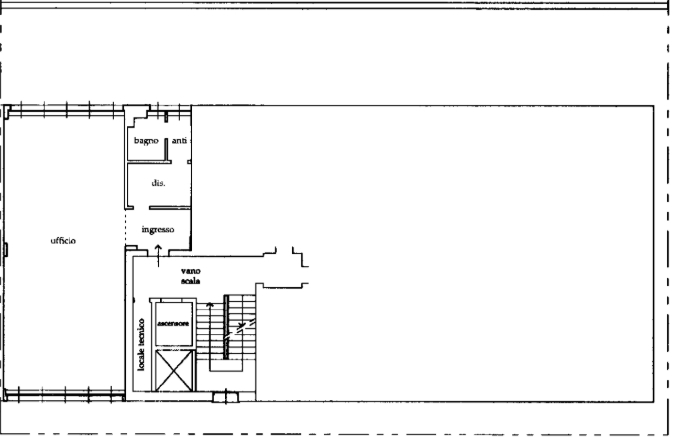
al primo piano di un edificio di recente costruzione (2007), proponiamo in vendita un ufficio accatastato A10, attualmente locato a un’attività di pilates con contratto in essere fino al 31 agosto 2029 e canone annuo di €6.000 + IVA. Completa la proprietà una cantina, inclusa nel prezzo.

Contesto

In posizione centrale a Funo.

Castel Maggiore

Caricamento numero...
Riferimento: 924-25d
* I campi contrassegnati con l’asterisco sono obbligatori